百万至尊电话:0512-57571599
手机:13358054159
百万至尊邮箱:rimy@so-k.com.cn
地址:江苏省昆山市高新区锦淞路268号4栋
AHU离心风机是属于通风系统中必不可少的一个重要部分,而AHU风机节能改造能够为各种场所提供充足新鲜的空气,保障环境的安全和清新。ahu改造的真正目的就是为了迎合环保冷却的理念,让通风系统更加的节能环保。

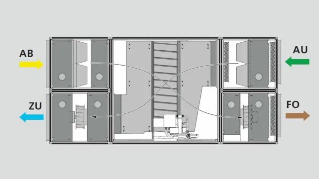
AHU的独特之处在于它采用的技术,这是一种基于间接蒸发冷却的技术方法(Ka2O技术)。将使用过的空气从内部吸入,再用小喷嘴淋湿,水蒸发能够从废气中提取出热量。而在Ka2O逆流交换器之中,吸进去的外部热空气会由冷废气冷却,这两者之间不会混合。最后外部的空气经过过滤,会进入内部。
冷却后的空气在进入内部后,就到了AHU离心风机发挥作用的地方了。AHU离心风机具有高性能的叶轮,非常的坚固、振动小,能够承受高背压。并且还采用的是绿色科技的EC电机,具有高效率和低功耗的特点。因此AHU风机非常适用于AHU系统中,它能够克服热交换产生的高背压,也非常契合环保冷却的理念。
相比于传统的制冷机组,AHU风机节能改造是无需化学制冷剂或者机械冷却的,除了水泵和AHU风机需要消耗一些电力和水外,几乎无需任何其他物质,这使得AHU改造非常环保,并且具有很高的能源效率,几乎不会产生二氧化碳。这也是越来越多场所使用AHU改造来减少碳足迹的原因。

AHU风机节能改造能够为各种场所提供一个理想、安全的环境。百万至尊12年致力于风机的生产销售服务,提供定制化的"绿色智能"解决方案,大量现货,合作零距离,提供产品及技术服务。

400电话
关注我们